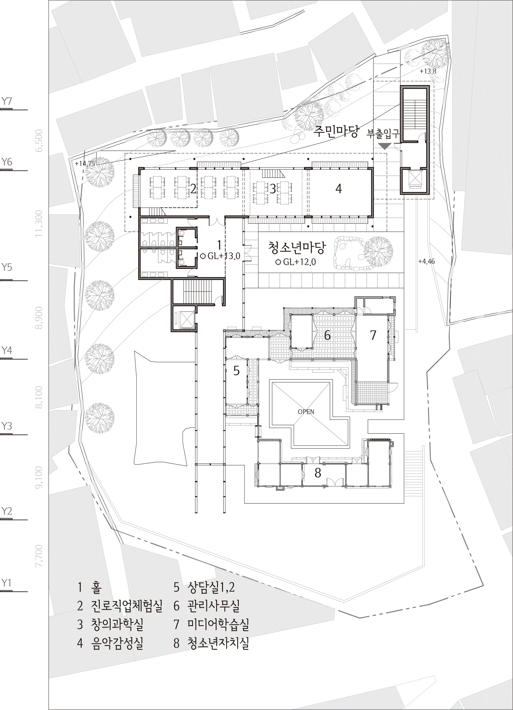
Title : 창신길 공용주차장 및 청소년 복합시설
Program : Mixed use(Public Parking, Cultural)
Location : Changsin-gil, Jongno-gu, Seoul, Korea

‘기존 자연지형과 한옥의 위치를 존중’한 배치
자연에 합일하는 ‘한옥배치개념의 현대화’
지형의 흐름과 새롭게 형성되는 ‘건축물의 유기적 연계’
‘현재성의 건축적 개입’으로 ‘한옥의 새로운 인식화’
현재성으로 재해석한 한옥의 단면이 역사로써 건축에 그려지다.









