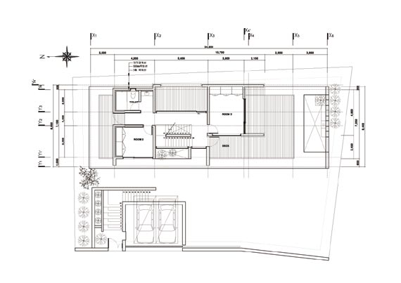
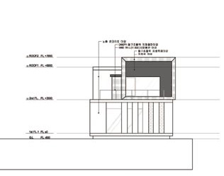
Title : The Cube house
Program : Residential
Location : Gunza dong, Yong In, Korea
Gross floor area : 137.55 m²
Total floor area : 197.52 m²
Ground area : 529.450 m²
Design Period : 2006. 09. 01 ~ 2007. 02. 27
Unfinished Project
Like in most residential designs, the design plans can differ in respective steps of the project.
Sometimes, when one looks at the initial plan and the end-product, it is hard to believe that they all were for the same place.
Yong-in Residence
This project went through a total of five draft designs.
The overall size of the project was small and the costs was not large. Also, the ground condition was not a simple kind.
However, through five revisions and an entire year of design work, the work finally was completed.
The fifth design was selected by the client and, when I return to Korea in the future, this project will be initiated.
Unfortunately, the client selected the fifth version, I still think that the first version is the best answer of this project.

Regardless, this project is still ongoing in my mind.
This residence stays in my mind as new enlightened thoughts on architecture enters it. The new draft design is made and then revised into nothing, as the plan/ design keeps changing.



















