Title : Bulthaup Building
Program : Commercial
Location : Chungdam-dong, Gangnam-gu, Seoul, Korea
Gross floor area : 45 m²
Total floor area : 130 m²
Design Period : 2004. 12. 01 ~ 2004. 12. 20
Construction Period : 2004. 12. 24 ~ 2005. 01. 11
This project is completed by connecting the architecture’s exterior design vocabulary with the interior design vocabulary. The exterior mass is not afforded the liberty due to the regulations based on building heights.
Therefore, the exterior form was coordinated in accordance within the range discernible by the human scale.
The volume was amassed according to the client’s request by maximizing the area of each level. In the box mass, the exterior layer overlapping effect was applied in a layer form.
In the Bultaup project, stainless steel, which is the main material, was used in the exterior layer.
The thin layer that comprises the layer in said exterior layer above uses a steel screen that creates a translucent silhouette. The silhouette
creates an effect of forming a solid stainless-steel mass.
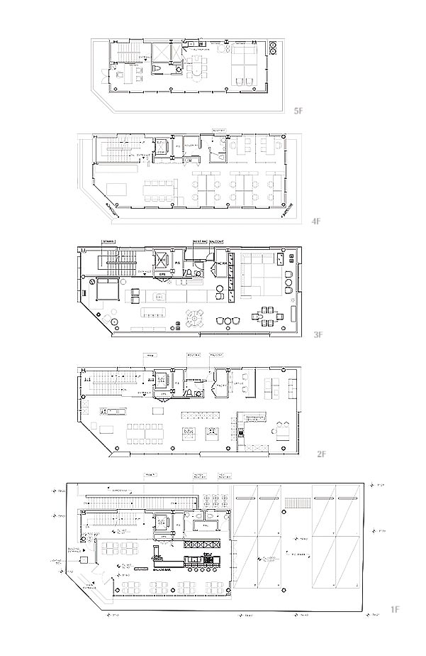
Every level is designed to be
functional; the first floor of the bulthaup is a cafeteria, second and third
floors are exhibit halls, and the fourth and fifth floors are offices. The
floors are designed in order to reflect their basic features well.
The architect’s aim is to provide a space where each object can express itself
well as decorative
interior and to fill the space after the construction is completed. Therefore,
this project was designed to provide the most effective constructive space and
the customized lighting for the functional purpose of each level. In
particular, the steps were designed in order to reflect the confidence and
solid role player of the building’s exterior and also the steps were designed
to become a space where the sentimental stimulation could be created through
usage
of black/white contrast and refined materials.
The fundamental architectural concept of this project is to profess the true inner-self as if looking through the mirror.




The architecture and its interior where the interior and exterior are not disconnected and also the functions that are performed in the building co-exist with truthfulness such that the harmonized and sublime architecture can be provided through this project.




