Title : Park Sul Ryu Design House
Program : Commercial
Location : Chungdam-dong, Gangnam-gu, Seoul, Korea
Gross floor area : 250.04 m²,
Total floor area : 1195.04 m²
Design Period : 2004. 09. 01 ~ 2004. 12. 09
Construction Period : 2004. 10. ~ 2005. 03.
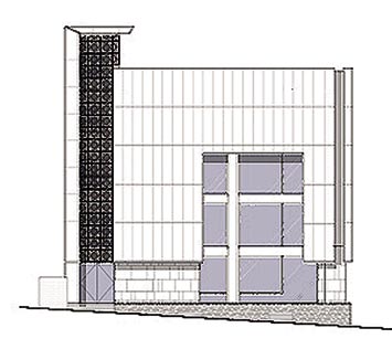
This Building was for a Korean traditional dress designer’s private building.
Therefore, I found key concepts from Korean traditional houses, clothes, and materials.
I decided that Corten steels apply to the main material of exterior envelope and the base of building used the stacking of traditional roof plates as traditional methods. Especially, I applied a Korean traditional lattice at the envelope of a staircase.

Respect the space itself
When I work on projects, I frankly do not stick to any inclination. I do not want to fix my thoughts under the name of style. I develop design through solving problems. Design is a comprehensive concept, which does not end when the construction begins but rather develops within construction, naturally suggesting a concept in the process. When a client agrees to the aesthetic choice, a concept that suits the project is finally produced.
















Behind the story
Unfortunately, I couldn’t control supervision of construction by the end, because the client of this building wanted to change design by herself.
Finally, she realized that her decision was wrong, she came back to me, but it was too late to recover conditions of building.
Moreover, her financial limits was insufficient to change into my original design.



